Interesuje mnie

Mieszkanie 2-pokojowe Tychy Tołstoja - wolne od zaraz - Mieszkania Tychy

Informacje podstawowe

Typ nieruchomości: Mieszkanie
Liczba pokoi: 2
Piętro: 1
Powierzchnia całkowita: 50,00 m2

Typ budynku: blok
Ogrzewanie: centralne bez podzielników

Zapytaj o szczegóły oferty!

Opis inwestycji

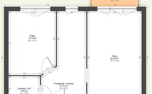
Mieszkanie na sprzedaż na osiedlu T przy ulicy Tołstoja na pierwszym piętrze trzypiętrowego budynku. Mieszkanie składa się z: - salonu o powierzchni 20 m2 - kuchni otwartej na przedpokój o łącznej powierzchni 13 m2 - sypialni o powierzchni 12 m2 - łazienki z toaletą o powierzchni 3,4 m2 - balkonu o powierzchni 3,9 m2 Okna na wschód i plac zabaw. Parking po drugiej stronie budynku, przed klatką. Mieszkanie nie wymaga wkładu finansowego, gotowe do zamieszkania. Opłaty przy zamieszkałych trzech osobach około 440 zł (bez wody, z ogrzewaniem - bez podzielników). Ciepła woda z sieci miasta (bez junkersa). Budynek został w 2019 roku ponownie ocieplony i pomalowany. Spółdzielnia mieszkaniowa "Teresa". Miejsce jest bardzo atrakcyjne, wokół dużo zieleni. Idealne dla rodziny, place zabaw, szkoły, przedszkola i pełna infrastruktura. Miejsce bardzo dobrze skomunikowane. Okolica cicha i spokojna. W pobliżu również całodobowa apteka, sklepy Kaufland, Biedronka, Lidl, Żabka, Rossmann, przystanek autobusowy, poczta. 1200 metrów do Jeziora Paprocańskiego. Oferta od właściciela, bez pośredników. Mieszkanie wolne od zaraz - obecnie niezamieszkane. Niniejsze ogłoszenie ma charakter informacyjny, nie stanowi oferty w rozumieniu przepisów Kodeksu Cywilnego. Rysunek wymiarowy wyłącznie poglądowy.

Negocjacja ceny: Tak

Lokalizacja

Tychy, Paprocany
18

Osoba kontaktowa:

bezpośrednio bezpośrednio

W okolicy

autobus, przedszkole, apteka, sklep spożywczy, szkoła, przychodnia, plac zabaw, centrum handlowe, poczta, basen, bankomat, bank, bar, teren rekreacyjny, boisko sportowe, kościół, stacja paliw, fryzjer, sklepy wielobranżowe

Przynależy do nieruchomości

balkon

Media

woda, prąd, gaz, kanalizacja